Agile
Architecture
Scénographie
Liste
Infos
Agile
Menu
Architecture
Scénographie
Liste
Infos
Goncourt
Année
2020
Ville
Paris 11e
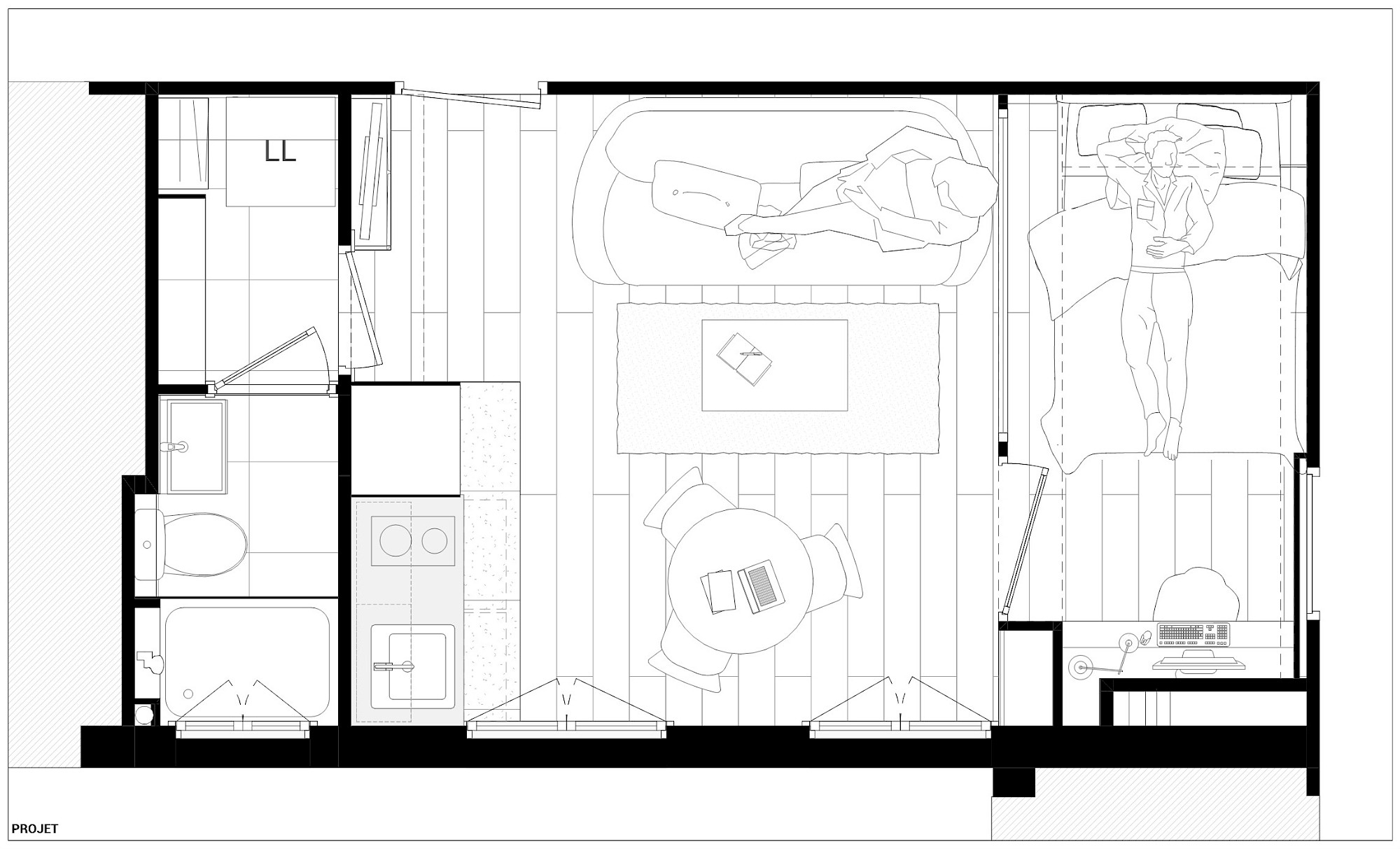
Programme
Rénovation lourde d’un studio
Superficie
21 m²
Maîtrise d’ouvrage
Privé
Avancement
Livré en 2020
Crédit images
Agile Architecture