Agile
Architecture
Scénographie
Liste
Infos
Agile
Menu
Architecture
Scénographie
Liste
Infos
Victor Hugo
Année
2021
Ville
Pantin
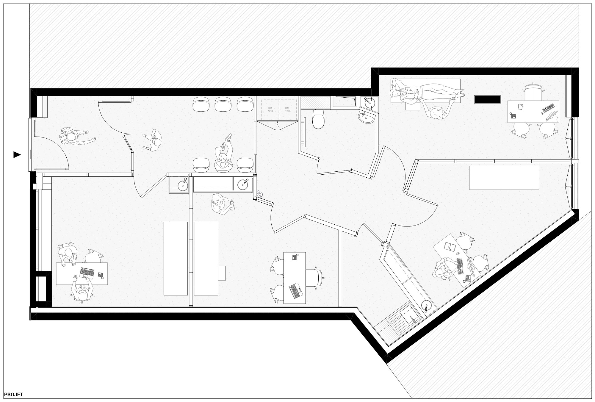
Programme
Aménagement d’un cabinet paramédical dans un local neuf livré brut
Superficie
80 m²
Maîtrise d’ouvrage
Privé
Avancement
Livré
Crédit images
Agile Architecture