Anjou

  • Année
    2025
  • Ville
    Paris
  • Adresse
    42 rue d'Anjou - 75008 PARIS
  • Programme
    Rénovation lourde d’un immeuble de bureaux
  • Superficie
    4 600m²
  • Maîtrise d’ouvrage
    CAVP
  • Mission
    Concours 2025
  • Équipe
    MO///ARCHITECTES - Architecte mandataire / AGENCE LOUIS BENECH - Paysagiste / ARCHIBUILD (OXMO) - Maitre d’oeuvre d’exécution / SCB ECONOMIE - Economiste / RBI - BET Fluides et thermique / OREGON - BET Structure et géotechnique / DELHOM ACOUSTIQUE - BET Acoustique / GREEN AFFAIR - BET Environnement / ACCEO - BET Transport vertical / BATISS - Coordinateur SSI / INGEPREV - Préventionniste / ARTELIA, maitre d’œuvre en curage, dépollution et désamiantage
  • Label
    Biodivercity
  • Crédit images
    Agile Architecture
  • À propos

    RENOVATION PATRIMONIALE

    Restaurer dans les règles de l’art et de valoriser les éléments patrimoniaux remarquables : vestibules, couloirs, escaliers, et ensembles décoratifs remarquables datant de l’état d’origine.

    COMPATIBILITE AVEC LE PLU BIOCLIMATIQUE

    Adapter nos choix architecturaux et techniques pour répondre aux exigences environnementales et de performance énergétique.

    Le projet est conçu de manière à maximiser l’intégration de solutions durables, tout en respectant les critères de biodiversité et d’impact thermique.

    Le jardin est aménagé selon les préconisations du PLU, en privilégiant des essences adaptées au réchauffement climatique et de provenances locales.

    MISE AU NORMES

    Dans le respect du bâti ancien, tant techniquement qu’esthétiquement, le projet doit faire l’objet d’une mise aux normes de sécurité et d’accessibilité des personnes, et d’une amélioration de la performance énergétique et du confort des utilisateurs.

    RATIONNALISATION SPATIALE

    Nous proposons de restructurer et rationnaliser l’édifice et ses deux corps, afin de permettre une plus grande fluidité dans les circulations, et une souplesse dans l’allotissement (avec une possibilité des séparations des lots à chaque niveau entre hôtel et aile, afin de garder la potentialité de location à de multiples preneurs).
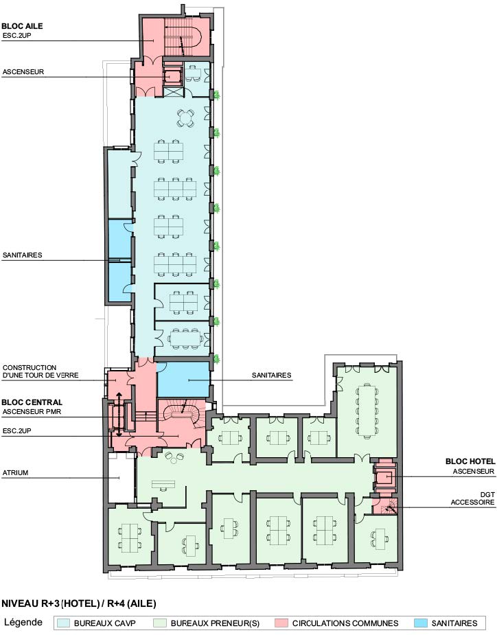
    Pour ce faire, nous avons prévu un projet d’acupuncture qui restructure l’espace de manière claire : par niveau, deux espaces de bureaux distincts encadrés par trois colonnes de circulations.

    OCCUPATION DES ESPACES

    Selon ce principe de distribution du bâtiment, les différents niveaux sont organisés de manière claire et logique, avec des espaces de qualités.

    Au rez-de jardin :
    L’articulation spatiale par le bloc centrale permet une distinction entre les espaces technique dans l’hôtel et l’espace libre dans l’aile.
    Une cafétaria inter-entreprises dans l’aile permettra une ouverture directe sur des terrasses dans le jardin, afin que chacun puisse profiter d’un café ou d’un déjeuner dans ce paradis vert.

    Au rez-de-chaussée :
    L’Aile pourrait accueillir la crèche, un autre ERP de 5e catégorie de type W ou R, ou des bureaux.
    L’Hôtel est réorganisé afin d’offrir plus de lumière et fluidité, et un design épuré mettant en valeur la qualité intrinsèque du lieu.
    En libre accès, l’entrée et le hall mettent en valeur la perspective sur le jardin, pour un accès généreux et direct. Des espaces d’attente, avec banquettes et aménités prendront place dans le hall. L’accueil est déplacé en façade sur rue en liaison avec l’entrée, et en contrôle de la zone privatisable du Salon d’Honneur.

    En étages :
    Ainsi desservi à la fois de manière autonome, et en commun par le bloc central (qui accueillera également des sanitaires), l’édifice se trouve réarticulé de manière efficace. Chaque niveau peut donc être alloti à l’envi : soit en un lot, soit en deux lots différents.

    QUALITE SPATIALE, CONFORT D’USAGE

    Le projet prévoit des espaces élégants, lumineux et ouverts sur les extérieurs.
    La tourelle de verre, permet un apport de lumière généreux dans le couloir du bloc central.
    L’hôtel est rénové pour exprimer son plein potentiel patrimonial, dans le respect de sa composition.
    L’aile est remise à neuf avec une écriture plus contemporaine. Elle conserve le principe de plateau modulaire librement agençable et de bande servante (sanitaires privés, locaux techniques, reprographie, stockage…).
    Les matériaux employés seront qualitatifs et chaleureux.